Rozvodnicové a rozvaděčové skříně OEZ

| Kategorie: Katalog  | Tento dokument chci!

Vydal: OEZ s.r.o. Autor: Siemens

Strana 142 z 196







Poznámky redaktora
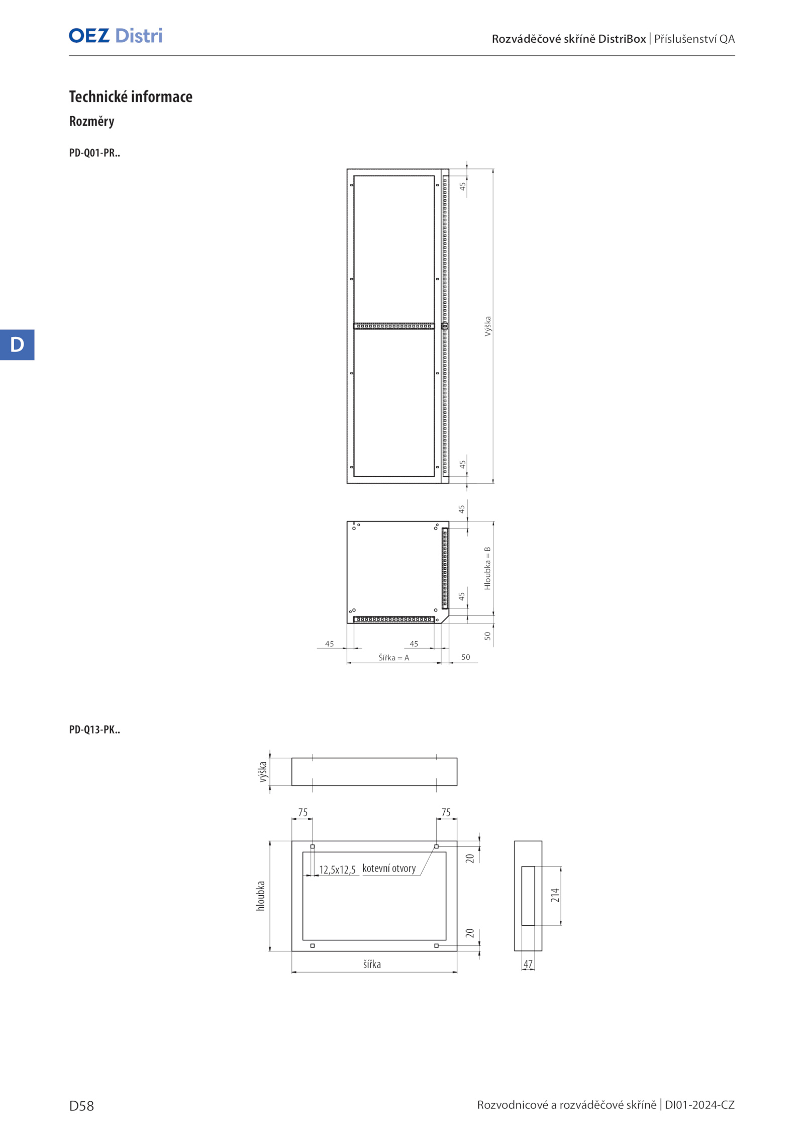
..D58 D Rozvodnicové rozváděčové skříně DI01-2024-CZ Rozváděčové skříně DistriBox Příslušenství QA Rozměry Technické informace Výška 45 45 Šířka A Hloubka = B 45 45 50 50 45 45 Podstavec PD-Q03PR-PK... 100 45 10 A 50 22,5 75 8x†12,5 22,5 75 22,5 75 75 22,5 B +50 4x Ø14 PD-Q01-PR... Podstavec výška kotevní otvory šířka hloubka 12,5x12,5 20 20 75 75 47 214 ... PD-Q13-PK... Rohové pole PD-Q01-PR