ZPRAVODAJSTVÍ
TELEVIZE
DISKUSE
DOKUMENTY
O NÁS
KONTAKTY
Vyhledat
Pouze v této knize
Přihlásit se
Přehled podle firmy
Přehled podle obsahu
Katalog celobetonových kompaktních transformoven ELTRAF
| Kategorie:
Leták / Datasheet
|
Tento dokument chci!
Vydal:
ELTRAF, a.s.
Strana
29
z 40
« Předchozí
1
2
3
4
5
6
7
8
9
10
11
12
13
14
15
16
17
18
19
20
21
22
23
24
25
26
27
28
29
30
31
32
33
34
35
36
37
38
39
40
Další »
«
»
« Předchozí
Další »
Zobrazení indexu knihy
Jak získat tento dokument?
Bezplatně objednat AKTUÁLNÍ papírovou verzi katalogu trafostanic ELTRAF zde!
Poznámky redaktora
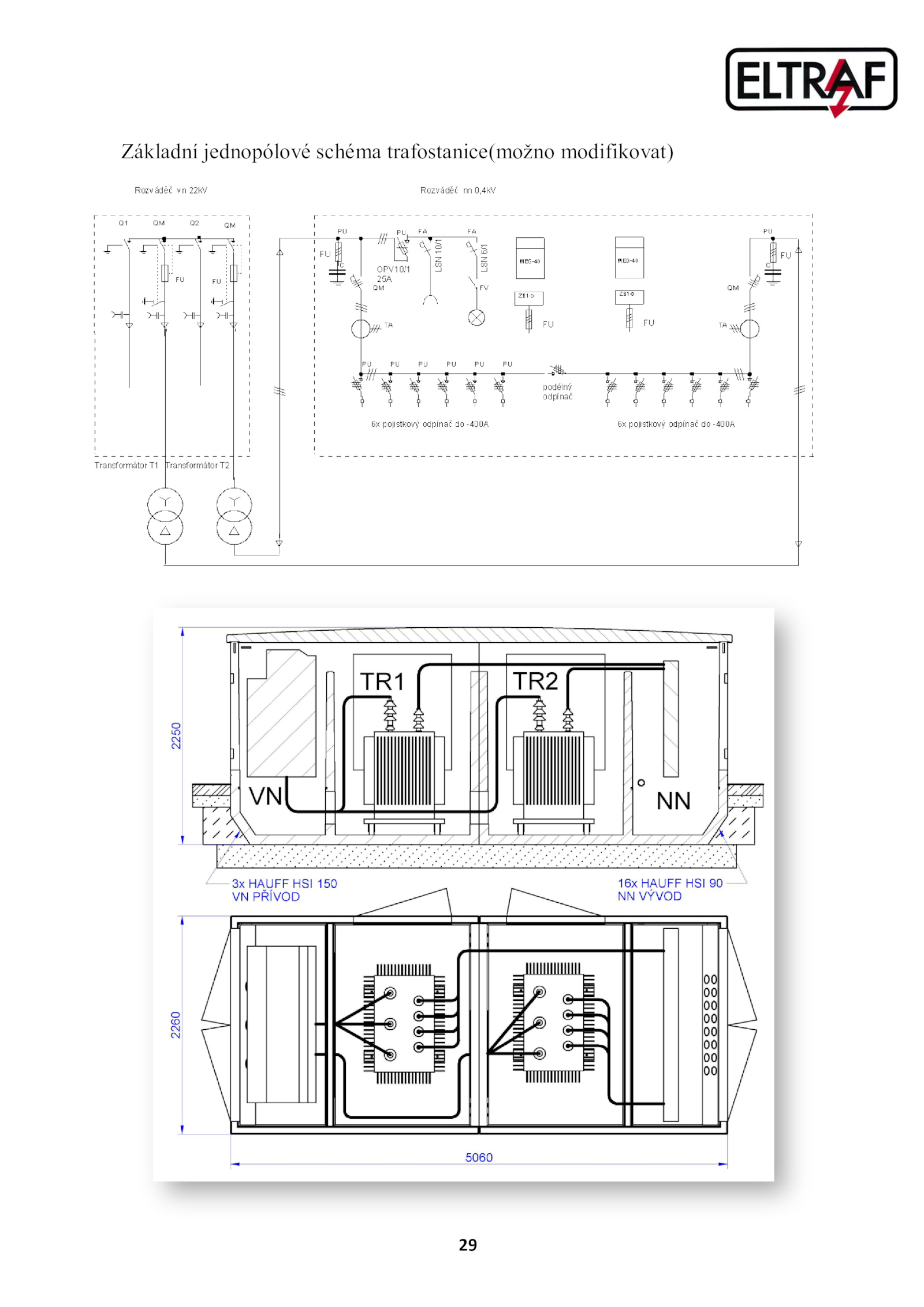
29 Základní jednopólové schéma trafostanice(možno modifikovat)