ZPRAVODAJSTVÍ
TELEVIZE
DISKUSE
DOKUMENTY
O NÁS
KONTAKTY
Vyhledat
Pouze v této knize
Přihlásit se
Přehled podle firmy
Přehled podle obsahu
Monitoring teploty ve výkonové aplikaci
| Kategorie:
Diplomové, bakalářské práce
|
Tento dokument chci!
Vydal:
Fakulta elektrotechniky a komunikačních technologií VUT v Brně
Autor:
Vojtěch Jirka
Strana
60
z 61
« Předchozí
1
10
20
30
40
50
60
61
Další »
«
»
« Předchozí
Další »
Zobrazení indexu knihy
Jak získat tento dokument?
Poznámky redaktora
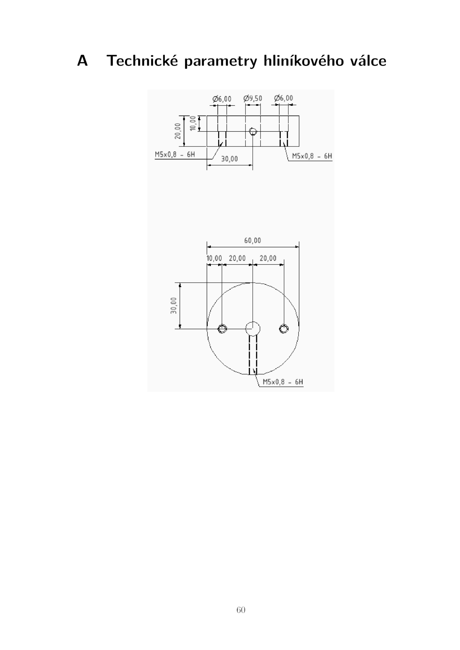
Technické parametry hliníkového válce 60