PPDS – Příloha 4: Pravidla pro paralelní provoz výroben a akumulačních zařízení se sítí provozovatele distribuční soustavy.

| Kategorie: Firemní tiskovina  | Tento dokument chci!

základní pravidlový rámec pro všechny, kdo chtějí připojit výrobnu elektřiny nebo akumulační zařízení do distribuční soustavy. Není to napsané jen pro distributora, ale také pro projektanty, investory, provozovatele výroben a další odborníky, kteří se na přípravě a provozu takového zařízení podílejí. Smyslem je, aby už při návrhu bylo jasné, za jakých technických podmínek se vůbec dá zařízení k síti připojit a jak se musí chovat, aby neohrožovalo bezpečný a spolehlivý provoz celé soustavy. Už v úvodu je patrné, že nejde jen o formální povolení připojení, ale hlavně o to, aby výrobna síť nerušila, nezhoršovala kvalitu napětí a při poruchách nebo přechodových stavech se chovala předvídatelně.

Vydal: Neurčeno Autor: Provozovatelé distribučních soustav v ČR

Strana 86 z 93

Jak získat tento dokument?






Poznámky redaktora
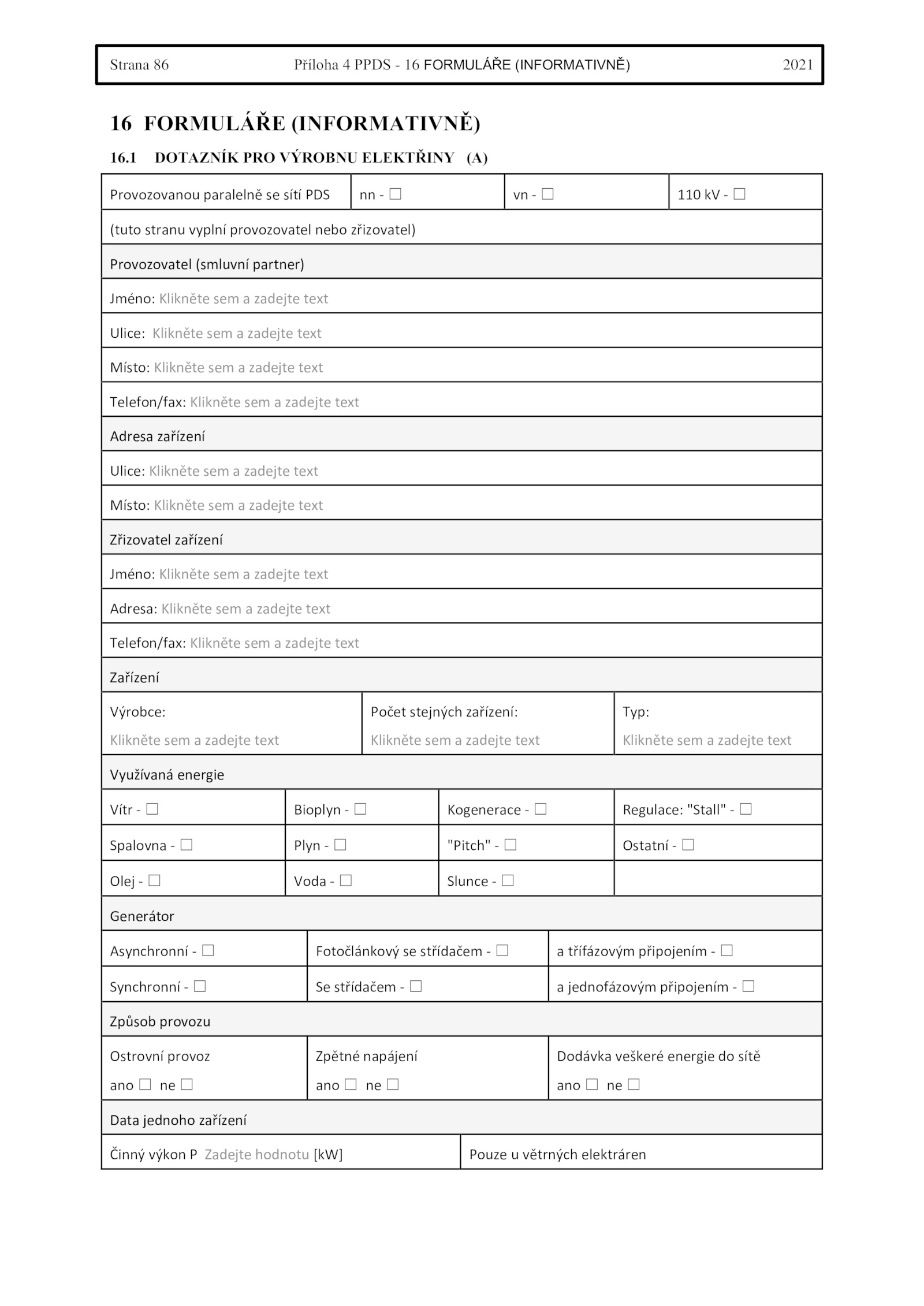
1 DOTAZNÍK PRO VÝROBNU ELEKTŘINY (A) Provozovanou paralelně sítí PDS 110 ☐ (tuto stranu vyplní provozovatel nebo zřizovatel) Provozovatel (smluvní partner) Jméno: Klikněte sem zadejte text Ulice: Klikněte sem zadejte text Místo: Klikněte sem zadejte text Telefon/fax: Klikněte sem zadejte text Adresa zařízení Ulice: Klikněte sem zadejte text Místo: Klikněte sem zadejte text Zřizovatel zařízení Jméno: Klikněte sem zadejte text Adresa: Klikněte sem zadejte text Telefon/fax: Klikněte sem zadejte text Zařízení Výrobce: Klikněte sem zadejte text Počet stejných zařízení: Klikněte sem zadejte text Typ: Klikněte sem zadejte text Využívaná energie Vítr Bioplyn Kogenerace Regulace: "Stall" ☐ Spalovna Plyn "Pitch" Ostatní ☐ Olej Voda Slunce ☐ Generátor Asynchronní Fotočlánkový střídačem třífázovým připojením ☐ Synchronní střídačem jednofázovým připojením ☐ Způsob provozu Ostrovní provoz ano ☐ Zpětné napájení ano ☐ Dodávka veškeré energie sítě ano ☐ Data jednoho zařízení Činný výkon Zadejte hodnotu [kW] Pouze větrných elektráren .Strana Příloha PPDS FORMULÁŘE (INFORMATIVNĚ) 2021 16 FORMULÁŘE (INFORMATIVNĚ) 16