NIKO Hlavní katalog

| Kategorie: Katalog  | Tento dokument chci!

Vydal: Niko Slovakia spol. s.r.o.

Strana 307 z 420







Poznámky redaktora
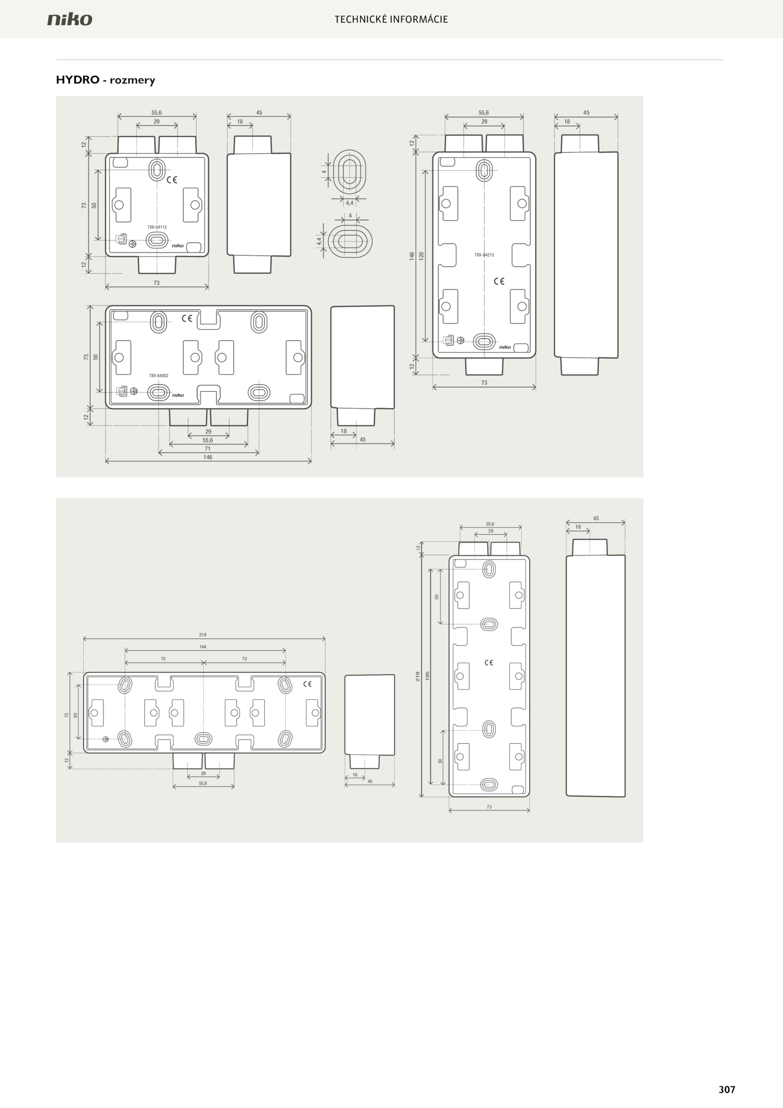
Technické informácie 307 Hydro rozmery 7XX-84802 7XX-84212 55,6 29 18 45 55,6 18 29 45 12 73 12 50 73 12 73 50 45 18 29 55,6 71 146 12 12 146 120 73 4,4 4 4 4,4 7XX-84112 72 72 55,6 29 12 73 50 29 55,6 144 219 12 219 195 73 50 18 45 18 45 50