Hlavní Katalog LOVATO 2024-25

| Kategorie: Katalog  | Tento dokument chci!

Vydal: LOVATO Electric s.r.o.

Strana 794 z 841







Poznámky redaktora
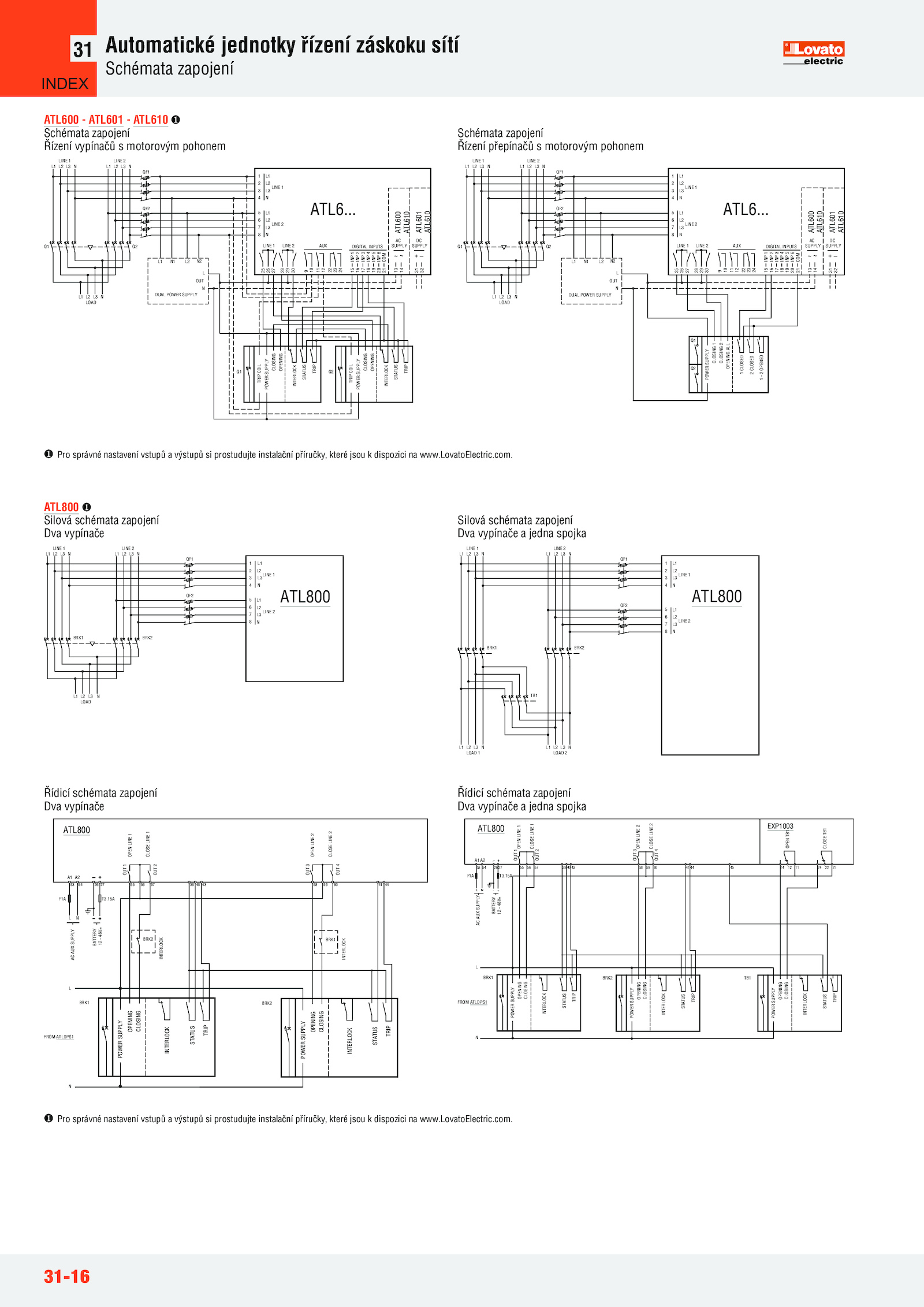
com. 15 DIGITAL INPUTS LINE 2 30 25 27 26 29 28 LINE 1 L3 7 N 8 6 L2 5 L1 LINE 2 22 11 12 23 24 AUX L2 2 4 N 3 L3 1 L1 LINE 1 SUPPLY DC 20 18 19 16 17 32 31 INP 1 INP 6 INP 4 INP 5 INP 2 INP 3 21 COM 9 10 ~ ~ SUPPLY AC 14 13 ATL601 ATL610 L1 N1 N L L2 N2 OUT POWER SUPPLY 2 CLOSED 1 - 2 OPENED Q2 Q1 CLOSING 1 OPENING ALL CLOSING 2 1 CLOSED DUAL POWER SUPPLY ATL600 ATL610 Pro správné nastavení vstupů výstupů prostudujte instalační příručky, které jsou dispozici www. ATL600 ATL601 ATL610 Schémata zapojení Řízení vypínačů motorovým pohonem L1 LOAD L2 N L2 LINE 2 Q1 L1 LINE 1 L3 L2 L1 Q2 QF2 QF1 N L3 CLOSING STATUS INTERLOCK POWER SUPPLY POWER SUPPLY Q1 OPENING CLOSING TRIP Q2 STATUS INTERLOCK OPENING TRIP + _ ATL6..LovatoElectric.15A BATTERY 12 - 48V= 55 57 56 OPEN LINE 1 CLOSE LINE 1 OUT 1 OUT 2 L N 54 53 A1A2 AC AUX SUPPLY L N 40 43 39 60 59 OPEN LINE 2 CLOSE LINE 2 OUT 3 OUT 4 41 11 12 45 21 22 OPEN TB1 CLOSE TB1 F1A STATUS INTERLOCK POWER SUPPLY BRK1 OPENING CLOSING TRIP BRK2 FROM ATLDPS1 STATUS INTERLOCK POWER SUPPLY OPENING CLOSING TRIP TB1 STATUS INTERLOCK POWER SUPPLY OPENING CLOSING TRIP ATL800 EXP1003 Pro správné nastavení vstupů výstupů prostudujte instalační příručky, které jsou dispozici www.. ,1'(; .15A BATTERY 12 - 48V= 55 57 56 OPEN LINE 1 CLOSE LINE 1 OUT 1 OUT 2 L N 54 53 A1 A2 AC AUX SUPPLY STATUS INTERLOCK POWER SUPPLY BRK1 OPENING CLOSING TRIP BRK2 L N FROM ATLDPS1 BRK2 40 43 39 60 59 OPEN LINE 2 CLOSE LINE 2 OUT 3 OUT 4 STATUS INTERLOCK POWER SUPPLY OPENING CLOSING TRIP BRK1 41 44 INTERLOCK INTERLOCK F1A ATL800 Řídicí schémata zapojení Dva vypínače jedna spojka + - 27 26 + -- T3.com. 15 DIGITAL INPUTS LINE 2 30 25 27 26 29 28 LINE 1 L3 7 N 8 6 L2 5 L1 LINE 2 22 11 12 23 24 AUX L2 2 4 N 3 L3 1 L1 LINE 1 SUPPLY DC 20 18 19 16 17 32 31 INP 1 INP 6 INP 4 INP 5 INP 2 INP 3 21 COM 9 10 ~ ~ SUPPLY AC 14 13 ATL601 ATL610 L1 N1 N L L2 N2 OUT DUAL POWER SUPPLY TRIP COIL TRIP COIL ATL600 ATL610 Schémata zapojení Řízení přepínačů motorovým pohonem L1 LOAD L2 N L2 LINE 2 Q1 L1 LINE 1 L3 L2 L1 Q2 QF2 QF1 N L3 + _ ATL6.LovatoElectric..31-16 Automatické jednotky řízení záskoku sítí Schémata zapojení 31 ATL800 Silová schémata zapojení Dva vypínače L1 LOAD L2 N L2 LINE 2 BRK1 L1 LINE 1 N 2 L 3 L L1 BRK2 QF2 QF1 3 L N L3 7 N 8 6 L2 5 L1 LINE 2 2 2 L 4 N 3 L3 1 L1 LINE 1 ATL800 Silová schémata zapojení Dva vypínače jedna spojka L1 LOAD 2 L2 N L2 LINE 2 BRK1 L1 LINE 1 L3 L2 L1 BRK2 QF2 QF1 N L3 ATL800 L3 7 N 8 6 L2 5 L1 LINE 2 L2 2 4 N 3 L3 1 L1 LINE 1 L1 LOAD 1 L2 N TB1 Řídicí schémata zapojení Dva vypínače 27 26 T3.