ZPRAVODAJSTVÍ
TELEVIZE
DISKUSE
DOKUMENTY
O NÁS
KONTAKTY
Vyhledat
Pouze v této knize
Přihlásit se
Přehled podle firmy
Přehled podle obsahu
Hlavní Katalog LOVATO 2024-25
| Kategorie:
Katalog
|
Tento dokument chci!
Vydal:
LOVATO Electric s.r.o.
Strana
774
z 841
« Předchozí
1
10
20
30
40
50
60
70
80
90
100
110
120
130
140
150
160
170
180
190
200
210
220
230
240
250
260
270
280
290
300
310
320
330
340
350
360
370
380
390
400
410
420
430
440
450
460
470
480
490
500
510
520
530
540
550
560
570
580
590
600
610
620
630
640
650
660
670
680
690
700
710
720
730
740
750
760
770
780
790
800
810
820
830
840
841
Další »
«
»
« Předchozí
Další »
Zobrazení indexu knihy
Jak získat tento dokument?
Objednat bezplatné zaslání AKTUÁLNÍ elektronické verze katalogu LOVATO zde!
Poznámky redaktora
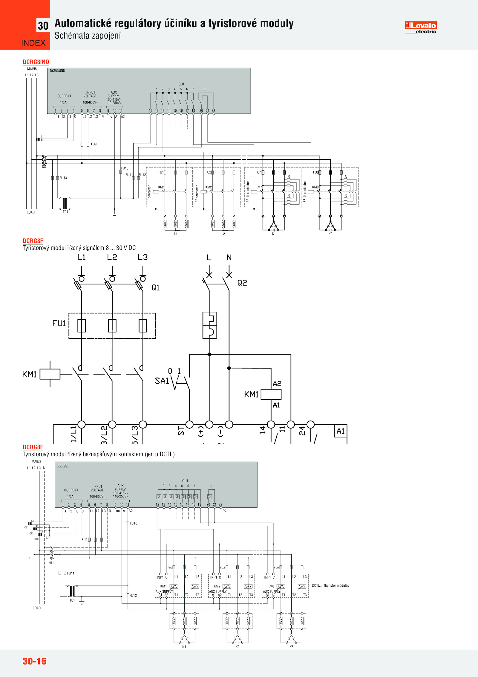
DC DCRG8IND L3 FU2 L2 R R K2 FU8 R R FU9 L1 L2 MAINS FU7 FU11 FU12 FU10 TC1 K1 QS1 LOAD FU13 8 7 22 20 21 18 6 5 4 3 1 2 SUPPLY AUX 17 16 15 14 12 7 13 6 5 11 9 4 10 100-600V~ INPUT VOLTAGE 3 DCRG8IND CURRENT 2 1 8 110-250V= 100-415V~ 1/5A~ OUT S2 S1 C I3 I2 I1 L3 L2 L1 A2 nc A1 N BF....K contactor BF. Thyristor modules L3 L1 L2 MAINS N CT1 LOAD S2 S1 S1 S1 CT2 CT3 QS1 FU11 TC1 FU9 FU10 FU12 SUPPLY AUX 110-250V= 100-415V~ 100-600V~ INPUT VOLTAGE CURRENT 1/5A~ DCRG8F 7 6 5 11 9 4 10 3 2 1 8 C I3 I2 I1 L3 L2 L1 A2 nc A1 N 8 7 6 5 4 3 1 2 22 20 21 18 17 16 15 14 12 19 13 nc OUT L1 L3 T1 T3 AUX SUPPLY A1 A2 KM1 INP1 L3 T1 T3 AUX SUPPLY A1 A2 KM2 INP1 L3 T1 T3 AUX SUPPLY A1 A2 KM8 INP1 C K1 K8 DCRG8F Tyristorový modul řízený signálem ..K contactor BF contactor FU1 L1 BF contactor KM7 KM8 KM2 KM1 ,1'(; ....30-16 Automatické regulátory účiníku tyristorové moduly Schémata zapojení 30 DCRG8F Tyristorový modul řízený beznapěťovým kontaktem (jen DCTL) DCTL.